Frühchristentum
Die frühchristliche Basilika

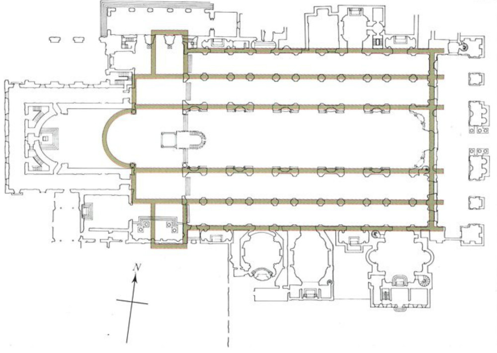
San Paolo fuori le mura. 3D-Rekonstruktion des Querschnitts vor dem Brand im Jahr 1823.
zurück
weiter